
Photo © Timothy Hursley
Anthony Timberlands Center for Design and Materials Innovation
“Chunky” is not typically considered a desirable quality for a building. Nevertheless, Shelley McNamara, cofounder with Yvonne Farrell of Dublin-based Grafton Architects, uses the term with clear satisfaction to describe the structure of her firm’s newly completed Anthony Timberlands Center for Design and Materials Innovation at the University of Arkansas in Fayetteville. “We worried that the wood wouldn’t have a strong enough presence,” McNamara admits. She should not have been concerned. The mass-timber building radiates a pleasing heft, with a totem-like volume and its muscular frame, including columns as large as 42-inches square and beams with spans as long as 50 feet.
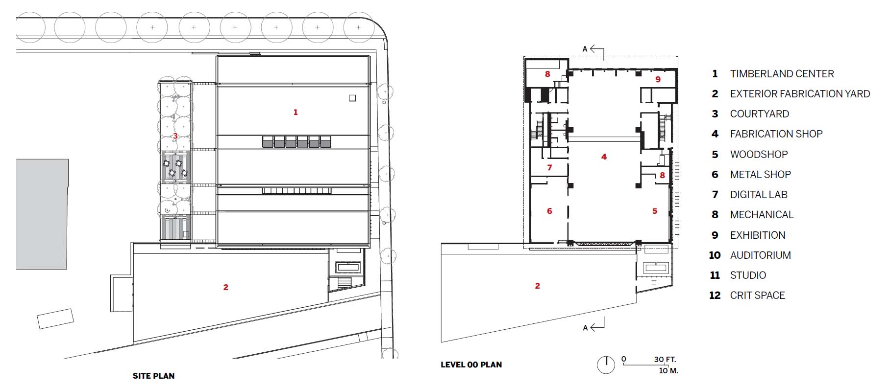
The educational building, which opened at the end of August as part of the Fay Jones School of Architecture and Design, is the first in the United States by the Pritzker Prize–winning McNamara and Farrell. The nearly 45,000-square-foot structure, designed with local practice Modus Studio, is the latest addition to the Windgate Art and Design District, an emerging cluster of arts and fabrication-focused facilities at the edge of the city and about a mile downhill from the heart of campus. Paid for with public and private funds—including a naming gift from John Ed Anthony, chairman of an Arkansas-based wood-products business, and his wife, Isabel—the Timberlands Center provides room to grow for the quickly expanding Fay Jones School, now numbering 1,100 students studying architecture, interiors, and landscape. But the building, constructed almost entirely of wood—inside and out—is more than just additional instructional space. It was conceived as the anchor for the school’s wood-focused initiatives, including its design-build program, a digital fabrication lab, a materials applied-research center, and a timber-design-innovation degree program, all of which align with the university’s status as a land-grant institution and its mission to support the economy in a state that is nearly 60 percent covered by forest. And, in fact, promotion of the state’s timber industry was an explicit project goal called out in the brief. The Timberlands Center, it said, “is expected to demonstrate mass timber and wood-product construction to the fullest extent possible, sourced primarily from Arkansas forests and mills.”
The building stands out from its semi-suburban landscape of strip malls and fast-food restaurants, sitting incongruously across five lanes of traffic from a Walmart and its sea of parking. Within a wood rainscreen and behind a glazed front facade, a set of programs, including an auditorium, studios and adjacent crit spaces, and seminar rooms are stacked. And, from the top of the resulting four-story tower, an irregular saw-tooth roof, integrating both north- and south-facing skylights, dramatically rises and descends to shelter the centerpiece of the building: an 11,000-square-foot high-bay fabrication shop that stretches 140 feet from the street to a rear outdoor-fabrication yard. Throughout, but especially here in the fabrication shop—a four-bay space that reaches nearly 80 feet high and is defined by chevron braces and eight beefy columns and substantial cross-laminated timber (CLT) walls and roof planes—the expressive potential of timber is on full display. With a five-ton gantry crane overhead, the rugged workshop feels as though it is a hybrid of a factory floor, an Ozark barn, and a cathedral.

Photo © Timothy Hursley
Program elements stacked behind a glazed street-facing facade (above) create a towerlike volume (below).

Photo © Timothy Hursley
Given the ambition of showcasing the potential of wood, Grafton selected as the result of a competition over several architects that specialize in mass-timber construction—might seem like an unusual choice. Although the firm has a deep portfolio of institutional and academic buildings that respond to programmatic complexity with inventive solutions grounded in context, McNamara and Farrell’s projects have been constructed primarily of exposed concrete, like, for example, the University of Engineering and Technology, in Lima, Peru (record, November 2015) and the Marshall Building for the London School of Economics (2022). Nevertheless, the jury chose Grafton’s proposal, citing it “as the one that most convincingly promises an evocative, superbly functioning, and environmentally and aesthetically exemplary building.” The jurors “were not focused solely on the material,” elaborates Peter MacKeith, Fay Jones School dean, “but also on the fundamentals of architecture—section, natural light, and structure.”
The jurors made their recommendation of Grafton’s scheme to the university’s building committee (of which MacKeith was part) in early February 2020, coincidentally just a month before the announcement of McNamara and Farrell’s Pritzker win. Not long after that, Covid interrupted daily life in much of the world and the nation, throwing the construction market and its supply chains into turmoil. The Timberlands Center project did not escape unscathed. The construction cost nearly doubled, from less than $20 million to $38.5 million, even though the final building has a smaller volume and 20 percent less floor area than originally planned. Sources point not only to pandemic-induced escalation for the higher price tag, but also to an already heated Northwest Arkansas construction market and competition from another high-profile mass-timber project, the Walmart headquarters in nearby Bentonville, completed by Gensler earlier this year.
In addition to becoming more compact, in the process of moving from a concept to a realized building, the Timberlands Center scheme was also simplified and made more buildable, while keeping the original design’s DNA intact. For instance, the roof, or “canopy of light and air,” as the architects refer to it, was transformed from a series of V-shaped roofs and skylights resembling the segmented tail of an exotic reptile to a more rational, visually stronger set of peaks and val-
leys. But despite these changes, the finished building retains the most powerful moves of the competition scheme, including those that celebrate typically prosaic requirements, such as managing stormwater. The structure includes two gutter beams, both several feet deep and clearly legible from the exterior, which perform double duty to support the roof and to channel rainwater. The gutters feed the landscape of a courtyard to the building’s west, which includes native loblolly pine trees and a regenerative bioswale. Grafton was surprised to discover that Northwest Arkansas receives about 50 inches of rain per year, about twice as much as Dublin. The rainfall “was a major source of inspiration,” says Farrell.

Photo © Timothy Hursley
One of two gutter beams, which perform double duty to manage rainwater and support the roof, is visible in the top-floor studio space.

Photo © Timothy Hursley
Anthony Timberlands Center for Design and Materials Innovation
“Chunky” is not typically considered a desirable quality for a building. Nevertheless, Shelley McNamara, cofounder with Yvonne Farrell of Dublin-based Grafton Architects, uses the term with clear satisfaction to describe the structure of her firm’s newly completed Anthony Timberlands Center for Design and Materials Innovation at the University of Arkansas in Fayetteville. “We worried that the wood wouldn’t have a strong enough presence,” McNamara admits. She should not have been concerned. The mass-timber building radiates a pleasing heft, with a totem-like volume and its muscular frame, including columns as large as 42-inches square and beams with spans as long as 50 feet.
The educational building, which opened at the end of August as part of the Fay Jones School of Architecture and Design, is the first in the United States by the Pritzker Prize–winning McNamara and Farrell. The nearly 45,000-square-foot structure, designed with local practice Modus Studio, is the latest addition to the Windgate Art and Design District, an emerging cluster of arts and fabrication-focused facilities at the edge of the city and about a mile downhill from the heart of campus. Paid for with public and private funds—including a naming gift from John Ed Anthony, chairman of an Arkansas-based wood-products business, and his wife, Isabel—the Timberlands Center provides room to grow for the quickly expanding Fay Jones School, now numbering 1,100 students studying architecture, interiors, and landscape. But the building, constructed almost entirely of wood—inside and out—is more than just additional instructional space. It was conceived as the anchor for the school’s wood-focused initiatives, including its design-build program, a digital fabrication lab, a materials applied-research center, and a timber-design-innovation degree program, all of which align with the university’s status as a land-grant institution and its mission to support the economy in a state that is nearly 60 percent covered by forest. And, in fact, promotion of the state’s timber industry was an explicit project goal called out in the brief. The Timberlands Center, it said, “is expected to demonstrate mass timber and wood-product construction to the fullest extent possible, sourced primarily from Arkansas forests and mills.”
The building stands out from its semi-suburban landscape of strip malls and fast-food restaurants, sitting incongruously across five lanes of traffic from a Walmart and its sea of parking. Within a wood rainscreen and behind a glazed front facade, a set of programs, including an auditorium, studios and adjacent crit spaces, and seminar rooms are stacked. And, from the top of the resulting four-story tower, an irregular saw-tooth roof, integrating both north- and south-facing skylights, dramatically rises and descends to shelter the centerpiece of the building: an 11,000-square-foot high-bay fabrication shop that stretches 140 feet from the street to a rear outdoor-fabrication yard. Throughout, but especially here in the fabrication shop—a four-bay space that reaches nearly 80 feet high and is defined by chevron braces and eight beefy columns and substantial cross-laminated timber (CLT) walls and roof planes—the expressive potential of timber is on full display. With a five-ton gantry crane overhead, the rugged workshop feels as though it is a hybrid of a factory floor, an Ozark barn, and a cathedral.

Photo © Timothy Hursley
Program elements stacked behind a glazed street-facing facade (above) create a towerlike volume (below).

Photo © Timothy Hursley
Given the ambition of showcasing the potential of wood, Grafton selected as the result of a competition over several architects that specialize in mass-timber construction—might seem like an unusual choice. Although the firm has a deep portfolio of institutional and academic buildings that respond to programmatic complexity with inventive solutions grounded in context, McNamara and Farrell’s projects have been constructed primarily of exposed concrete, like, for example, the University of Engineering and Technology, in Lima, Peru (record, November 2015) and the Marshall Building for the London School of Economics (2022). Nevertheless, the jury chose Grafton’s proposal, citing it “as the one that most convincingly promises an evocative, superbly functioning, and environmentally and aesthetically exemplary building.” The jurors “were not focused solely on the material,” elaborates Peter MacKeith, Fay Jones School dean, “but also on the fundamentals of architecture—section, natural light, and structure.”
The jurors made their recommendation of Grafton’s scheme to the university’s building committee (of which MacKeith was part) in early February 2020, coincidentally just a month before the announcement of McNamara and Farrell’s Pritzker win. Not long after that, Covid interrupted daily life in much of the world and the nation, throwing the construction market and its supply chains into turmoil. The Timberlands Center project did not escape unscathed. The construction cost nearly doubled, from less than $20 million to $38.5 million, even though the final building has a smaller volume and 20 percent less floor area than originally planned. Sources point not only to pandemic-induced escalation for the higher price tag, but also to an already heated Northwest Arkansas construction market and competition from another high-profile mass-timber project, the Walmart headquarters in nearby Bentonville, completed by Gensler earlier this year.
In addition to becoming more compact, in the process of moving from a concept to a realized building, the Timberlands Center scheme was also simplified and made more buildable, while keeping the original design’s DNA intact. For instance, the roof, or “canopy of light and air,” as the architects refer to it, was transformed from a series of V-shaped roofs and skylights resembling the segmented tail of an exotic reptile to a more rational, visually stronger set of peaks and val-
leys. But despite these changes, the finished building retains the most powerful moves of the competition scheme, including those that celebrate typically prosaic requirements, such as managing stormwater. The structure includes two gutter beams, both several feet deep and clearly legible from the exterior, which perform double duty to support the roof and to channel rainwater. The gutters feed the landscape of a courtyard to the building’s west, which includes native loblolly pine trees and a regenerative bioswale. Grafton was surprised to discover that Northwest Arkansas receives about 50 inches of rain per year, about twice as much as Dublin. The rainfall “was a major source of inspiration,” says Farrell.

Photo © Timothy Hursley
One of two gutter beams, which perform double duty to manage rainwater and support the roof, is visible in the top-floor studio space.
One of the most engaging aspects of the building is its sectional complexity, a hallmark of Grafton’s work. This quality is best illustrated by an atrium, where the layered program elements meet the workshop. Here, a glass interior wall (with a special acoustically insulated triple-glazed system at the auditorium) allows the stacked spaces to “borrow” daylight from a skylight and provides a direct view of the fabrication activities below. The configuration also permits the workshop to be naturally ventilated through dampers located near the top of the atrium and via the stack effect, without the need for a traditional cooling system (the space is heated in the winter).
The rich spatial arrangement is enabled by a queen post, a common feature in the roof structures of 14th- and 15th-century barns, notes Mark Whitby, a director at London-based Whitby Wood, which helped develop the structural concept for the building. Here, the truss helps suspend the auditorium above the shop and is one of the few places in the building where steel is used in any significant way. (It is, of course, necessary for the connections and as rebar in concrete foundations and topping slabs.) Although the truss appears to be made entirely of glue-laminated timber (glulam), its two vertical tension members are wood-enclosed steel. The timber wrapper is not for aesthetics, explains Jason Wright, a partner at Modus, but to protect the steel from fire.

Photo © Modus Studio
A queen-post truss (above & below) and interior glazing allow visual connections between the 11,000-square-foot fabrication shop (last below) and other spaces, including the auditorium and crit areas.

Photo © Timothy Hursley

Photo © Timothy Hursley
If there is one place where the Timberlands Center falls short of its ambitions, it is in the sourcing of its mass timber. The CLT panels that comprise the walls and floor slabs are made of southern yellow pine, grown in the state and fabricated by Mercer Mass Timber (a subsidiary of a Canadian pulp and forest-products company that acquired a Conway, Arkansas, production facility in the summer of 2023 from another mass-timber manufacturer after it filed for bankruptcy). The various hardwoods in the building, including oak, cherry, and walnut, used as stair treads, trim, and other finishes, were also sourced in the region. But it proved most cost-effective to procure the glulam columns and beams making up the building’s frame from Europe. They were manufactured of spruce by the long-established Binderholz in Austria. “They were hard to beat on price and capability,” says Ben Baldwin, project executive for Nabholz, the general contractor.
Even though the glulam was imported, the project’s 62,000 cubic feet of CLT, grown and fabricated in Arkansas, does represent progress for the regional economy and the state’s wood-products industry. The Timberlands Center is the university’s fourth mass-timber building—following a 700-bed dormitory, a library-storage annex, and an interdisciplinary research facility—and the only one to use CLT from Arkansas. The project supported 52 jobs at Mercer’s Conway plant alone, says Ricardo Brites, the company’s director of engineering and virtual design and construction. That figure does not include the other jobs along the CLT’s supply chain, such as those at sawmills or in transportation, he points out.
Typically, for mass-timber projects, the design-and-construction team conducts a life-cycle analysis (LCA) quantifying the environmental impacts of the building’s con-
struction, including the embodied-carbon emissions—and any savings—associated with its materials and where they were sourced. Interestingly, none has been conducted for the Timberlands Center—yet. MacKeith says the LCA will be a faculty research project, highlighting just one of many ways the structure itself serves as a didactic tool rather than just a container for design and fabrication endeavors. The Timberlands Center, with its expressiveness and poetry, will both inspire and instruct architecture students for generations to come.

Image courtesy Grafton Architects

Image courtesy Grafton Architects

Image courtesy Grafton Architects
Supplemental Materials
Mass Timber Tipping Point: A study of Mass Timber Uptake Through the Experiences of North America’s Leading Architects and Engineers, Architecture 2030 and Pilot Projects, July 2025 (through page 23).
Credits
Architect: Grafton Architects — Yvonne Farrell, Shelley McNamara, principal directors; Gerard Carty, Philippe O’Sullivan, directors; Matt McCullagh, project architect; Donal O’Herlihy, Shane Twohig, senior architects
Architect of Record: Modus Studio — Chris Baribeau, Jason Wright, principals; Aaron Speaks, project architect; Zico Smith, design manager; Alli Preston, interior design; Jody Verser, associate architect
Consultants: Tatum Smith Welcher Structural Engineers (foundations); Robbins Engineering Consultants, Whitby Wood (mass timber); Affiliated Engineers (m/e/p/fp); Ground Control (landscape); Atelier Ten (sustainability); TM Light (lighting); WB Engineers (codes)
General Contractor: Nabholz Construction
Client: Fay Jones School of Architecture and Design
Size: 44,735 square feet
Construction cost: $38.5 million
Completion date: August 2025
Sources
Mass timber: Binderholz Holzpak (glulam), Mercer Mass Timber (CLT)
Curtain Wall: Kawneer
Metal wall and roof panels: PAC-CLAD
MOISTURE BARRIER: VaproShield
Roof Membrane: Hydrotech
Ceramic tile: Daltile